Jérémie Koempgen Architecture
actus
projets
contact
Tous les projets
en image
Habitat
Surélévation sur Loire
Maison sur Sèvre
Atelier d'Ici-là
Le bois au corps
Cuisine white & wood
On the rocks
Vivre sous un toit
Maison éguilles
Maison sur l'étang
Villa Solaire
Maison sur Marne
Équipement Public
Embarquement III - Aire de jeux
Plateforme groupe - Le VAN 2017
Plateforme cale - Le VAN 2017
Passerelle sur l'Aiguebelle
Urbanisme
Village d'artisans
Pier to Pier
Mobilier
Plateforme groupe - Le VAN 2017
Plateforme cale - Le VAN 2017
Cuisine white & wood
Embarquement - Le Voyage dans le Vignoble
Scénographie Pro[j]art
Meubles recyclants
Modulomeuble ouvrant
Plifer, Playgrounds du voyage à Nantes
Mobilier structurant
Rubber top
Thématique
Bâti, végétal & Landart
Matériau bois
Module & cinétique
Collaborations
Palais des congrès
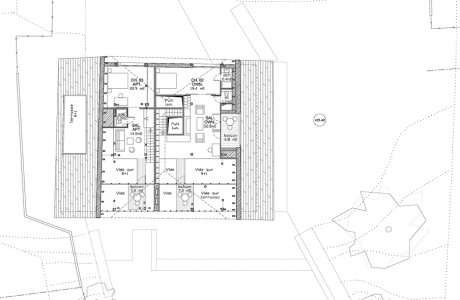
Plan de niveau R+2
En mezzanine sur le salon R+1 et dominant la terrasse extérieur le long de la façade Sud.
HAUT
Tous les projets
en image
Habitat
Surélévation sur Loire
Maison sur Sèvre
Atelier d'Ici-là
Le bois au corps
Cuisine white & wood
On the rocks
Vivre sous un toit
Maison éguilles
Maison sur l'étang
Villa Solaire
Maison sur Marne
Équipement Public
Embarquement III - Aire de jeux
Plateforme groupe - Le VAN 2017
Plateforme cale - Le VAN 2017
Passerelle sur l'Aiguebelle
Urbanisme
Village d'artisans
Pier to Pier
Mobilier
Plateforme groupe - Le VAN 2017
Plateforme cale - Le VAN 2017
Cuisine white & wood
Embarquement - Le Voyage dans le Vignoble
Scénographie Pro[j]art
Meubles recyclants
Modulomeuble ouvrant
Plifer, Playgrounds du voyage à Nantes
Mobilier structurant
Rubber top
Thématique
Bâti, végétal & Landart
Matériau bois
Module & cinétique
Collaborations
Palais des congrès